Indeks: 3561
-
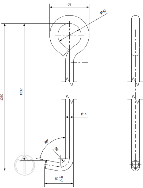
Zawiesie służy do transportu ładunków spoczywających w jego gardzieli, przy czym zawiesie powinno być obciążone wyłącznie w osi pionowej.
-
Spełnia przepisy dyrektywy maszynowej: 2006/42/WE
-
Wykonany wg zharmonizowanej normy: PN-EN 13155
Cechowany: znak wytwórcy, znak CE, nr fabryczny, rok produkcji.
Udźwig [kg] |
Masa [kg] |
100 |
1,7 |
Dodatkowe informacje
3561
-
Zawiesie służy do transportu ładunków spoczywających w jego gardzieli, przy czym zawiesie powinno być obciążone wyłącznie w osi pionowej.
-
Spełnia przepisy dyrektywy maszynowej: 2006/42/WE
-
Wykonany wg zharmonizowanej normy: PN-EN 13155
Cechowany: znak wytwórcy, znak CE, nr fabryczny, rok produkcji.
Udźwig [kg] |
Masa [kg] |
100 |
1,7 |
Dodatkowe informacje
3561
W tej samej kategorii
Zestaw zbiorczy klasy 12 KWB GTVK/SUN 1
Udźwig: od 2,36 do 12,2 t
Podnośnik hydrauliczny BSE
WLL: od 5000 do 25000 kg
![]()
Trójnóg THETA 100
miproCrane THETA 100






