Kosz osobowy podwieszany FR-A
Udźwig: 750 kg
Pojemność (liczba osób): 4 + 1 nosze ratownicze

Udźwig: od 500 kg
Pojemność (liczba osób): 1 - 2


Cechowanie: znak wytwórcy, udźwig, maksymalna liczba osób, numer fabryczny, rok produkcji, masa własna

| Kod | DOR | Pojemność | H | HR | L | LR | LS | I | IR | IS | Masa |
| [kg] | [liczba osób] | [mm] | [mm] | [mm] | [mm] | [mm] | [mm] | [mm] | [mm] | [kg] | |
| FR-S 2 | 500 | 2 | 2510 | 2080 | 1570 | 1370 | 1261 | 1090 | 790 | 701 | 240 |
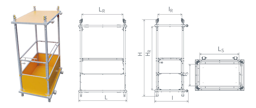
Cechowanie: znak wytwórcy, udźwig, maksymalna liczba osób, numer fabryczny, rok produkcji, masa własna

| Kod | DOR | Pojemność | H | HR | L | LR | LS | I | IR | IS | Masa |
| [kg] | [liczba osób] | [mm] | [mm] | [mm] | [mm] | [mm] | [mm] | [mm] | [mm] | [kg] | |
| FR-S 2 | 500 | 2 | 2510 | 2080 | 1570 | 1370 | 1261 | 1090 | 790 | 701 | 240 |
Udźwig: 750 kg
Pojemność (liczba osób): 4 + 1 nosze ratownicze

Udźwig: od 300 do 500 kg
Pojemność (liczba osób): 1 - 2

Udźwig: od 300 do 1 000 kg
Pojemność (liczba osób): 1 - 4

Udźwig: 300 kg
Pojemność (liczba osób): 2

Udźwig: od 500 do 750 kg
Pojemność (liczba osób): 2 - 3

Udźwig: od 500 do 1 000 kg
Pojemność (liczba osób): 2 - 4

Udźwig: od 500 kg
Pojemność (liczba osób): 1 - 2

